特诺发高性能被动房窗户
中国被动式建筑联盟理事会成员
绿色节能门窗
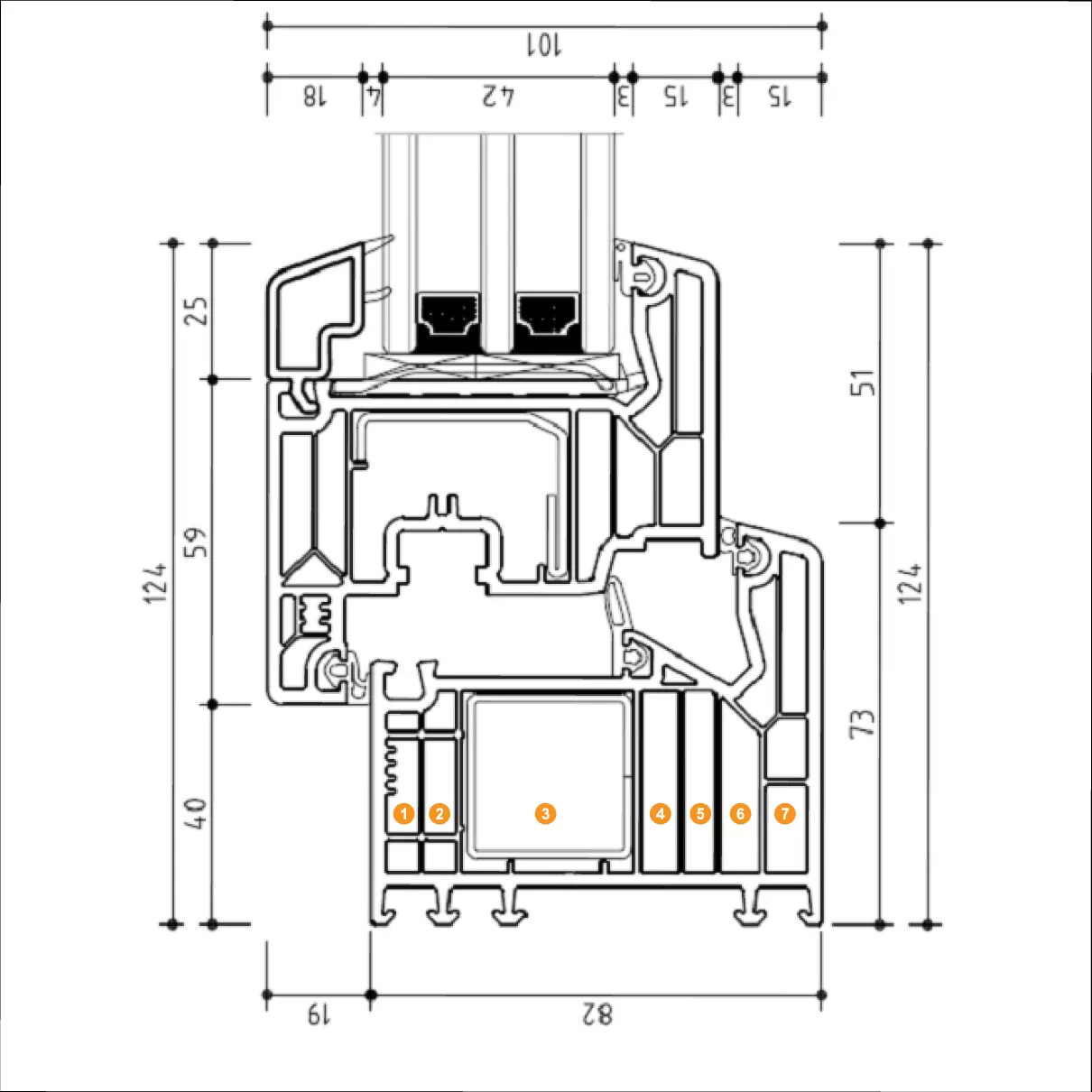
1.PRO PWV82M 七腔体塑钢被动房窗户
Uw≤1.0 W/(㎡·K)
PRO PWV82M基于PWV70M系统窗,通过优化型材系统并增加腔体提升其隔热性能,是全球隔热性能最佳的窗户之一。通过增加隔热腔体和加强衬钢,窗框传热系数Uf≤0.8 W/(㎡·K)。


性能参数:被动房窗户Uw≤0.8 W/(㎡·K)
2.T100 低能耗铝合金被动房内开内倒窗
专为超高能效和卓越性能设计的T100内开内倒窗符合被动房标准严苛要求。采用100系列断桥铝合金型材(6060-T6,壁厚1.8mm)和64mm PA66 GF25隔热条,传热系数达0.79-1.0 W/(㎡·K),是减少被动建筑热损失的理想选择。


性能参数:被动房窗户SHGC-0.44
3.H120 被动式铝包木系统窗

性能参数:Uw≤1.0 W/(㎡·K)
什么是雷诺丽特膜?
可覆于塑钢或铝合金门窗框体表面。


① PMMA膜
独特SST太阳能热屏蔽技术降低阳光热量对型材表面影响,确保强光下不变形,保障窗户气密性。
② 印刷油墨
色彩丰富,纹理逼真。
③PVC基材
外立面强抗色衰,不褪色不脱落。
易清洁,历久如新。
④PUR胶粘底层
固化过程不可逆,固化强度高,耐水性好

户外正常使用寿命超20年,不褪色不脱落。
SST太阳能热屏蔽技术降低型材内部温度。50μm聚丙烯酸酯抵抗99%紫外线,12000小时耐老化(氙灯)检测。Renolit膜选用耐光性优异颜料,色彩鲜艳图案逼真。表面防刮擦漆层可抵御指甲划痕,抗污性强,普通清洁剂即可去污。不产生静电,不易吸附灰尘。
工程案例



在线留言
欢迎随时咨询,我们将尽快回复